



Kondenzační kotel na topný olej Domusa JAKA HFD 20 CONDENS OD je speciálně navržen pro instalaci venku, což nabízí praktické a efektivní řešení pro domácnosti, kde je vnitřní prostor omezený. S užitečným výkonem 19,1 kW při 80°C/60°C tento model kombinuje pokročilou kondenzační technologii, vysoce kvalitní materiály a design odolný vůči nepříznivým povětrnostním podmínkám. Jeho špičkový výkon a energetická certifikace třídy A z něj činí vynikající volbu pro ty, kteří hledají efektivitu, úsporu a udržitelnost.
Kotel využívá efekt kondenzace k získání tepla ze spalin, čímž dosahuje účinnosti přes 103 % na nižší výhřevnost (P.C.I.). Tento proces výrazně snižuje spotřebu paliva, což přináší úspory až 30 % ve srovnání s tradičními kotly. Jeho vysoká účinnost je certifikována evropskou směrnicí ErP, což zaručuje nízký dopad na životní prostředí a nižší provozní náklady.
Design Domusa JAKA HFD 20 CONDENS OD je optimalizován tak, aby odolával nepříznivým klimatickým podmínkám. Jeho těsné obaly jsou pokryté EPOXY povlakem, který nabízí trvalou ochranu proti vlhkosti, dešti a teplotním výkyvům. Navíc jeho těsnost zajišťuje bezpečný a efektivní provoz v jakémkoli prostředí.
Tělo kotle je vyrobeno z litiny, což zaručuje dlouhou životnost i v náročných podmínkách. Nerezový kondenzátor zajišťuje vysoký tepelný výkon, zatímco modulární design usnadňuje údržbu a prodlužuje životnost zařízení.
Díky svému těsnému hořáku a vysoce kvalitní zvukové izolaci kotel nabízí extrémně tichý provoz, který poskytuje pohodlí jak uvnitř, tak venku.
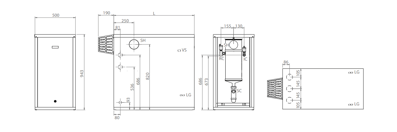
Model JAKA HFD 20 CONDENS OD je navržen pro snadnou a všestrannou instalaci. Může se přizpůsobit různým konfiguracím topných systémů a umožňuje odvod plynů pomocí polypropylenových trubek, což zjednodušuje montáž a snižuje související náklady. Navíc obsahuje kompletní a snadno použitelný ovládací panel s funkcemi jako termostat proti zamrznutí, termohydrometr a světelný spínač zapnutí a vypnutí.
Kotel Domusa JAKA HFD 20 CONDENS OD je ideálním řešením pro rodinné domy a prostory, které potřebují optimalizovat vnitřní prostor instalací topného zařízení venku. Jeho odolný design, energetická účinnost a nízká údržba z něj činí spolehlivou volbu pro náročné klima a uživatele, kteří upřednostňují úspory a udržitelnost.
S Domusa JAKA HFD 20 CONDENS OD si uživatel užívá robustní, efektivní kotel přizpůsobený moderním potřebám, který zaručuje tepelný komfort a dlouhodobou investici.