



Rám s drtičem SFA SANIWALL PRO Up, reference 0100832, je kompletní a všestranné řešení navržené pro instalaci závěsných toalet v domácnostech nebo komerčních prostorách. Tento systém kombinuje rám Grohe s dvojitým splachovacím nádržím, efektivním drtičem a matnými bílými skleněnými panely, které umožňují zcela skrýt instalaci ve zdi. Ideální pro situace, kde není k dispozici tradiční odvodnění, je SANIWALL PRO Up estetickou, funkční a snadno udržovatelnou volbou.
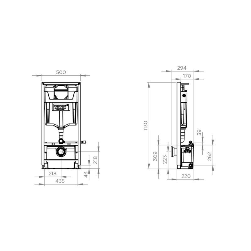
Rám Grohe obsažený v systému je navržen tak, aby byl výškově nastavitelný, což umožňuje větší flexibilitu při přizpůsobení instalace toalety na požadovanou výšku. Integrovaná nádrž je vybavena dvojitým splachovacím systémem, který umožňuje zvolit objem vody 3 nebo 6 litrů, čímž zajišťuje efektivní využití vody a šetrný provoz k životnímu prostředí. To nejen optimalizuje spotřebu vody, ale také poskytuje udržitelnější možnost pro moderní instalace.
SANIWALL PRO Up je vybaven výkonným drtičem o výkonu 400 W, který zvládá odpadní vody z toalety, umyvadla, sprchy a bidetu. Tento drtič má hlavní vstup pro toaletu a dvě boční vstupy o průměru 40 mm, což umožňuje snadné připojení dalších sanitárních zařízení v koupelně, jako je sprcha, umyvadlo nebo bidet. Drticí systém zajišťuje, že pevný odpad se rozkládá na malé částice, usnadňující odvodnění přes malé průměry trubek, jako jsou 22/28/32 mm, což usnadňuje instalaci v prostorech, kde není možné tradiční odvodnění.
Jednou z velkých výhod SANIWALL PRO Up je jeho automatický provoz, což zaručuje, že odvodnění odpadních vod probíhá efektivně pokaždé, když se používá toaleta, sprcha nebo umyvadlo. Drtič je schopen zvednout vody až do 5 metrů svisle a 100 metrů vodorovně, což z něj činí ideální řešení pro místa, kde je hlavní stoupačka daleko nebo ve vyšších úrovních. Tento výkon zajišťuje, že i v obtížných situacích je odvod odpadních vod rychlý a bezproblémový.
Kromě své funkčnosti vyniká SANIWALL PRO Up svým estetickým designem. Součástí jsou matné bílé skleněné panely, které umožňují zcela skrýt instalaci a poskytují moderní a čistý vzhled koupelny. Tyto panely nejen zlepšují estetiku, ale také nabízejí snadný přístup ke komponentům nádrže a drtiče, což výrazně usnadňuje údržbu. Na horní části drtiče jsou dva otvory, které umožňují rychlý přístup k vnitřním komponentům, což usnadňuje kontrolu nebo opravu bez nutnosti demontáže celého systému.
Provoz drtiče je diskrétní, s úrovní hluku pouhých 47 dB(A), což zajišťuje tichý provoz, což je zásadní vlastnost pro obytné prostory, kde je důležitý akustický komfort.
Technické specifikace SANIWALL PRO Up:
SANIWALL PRO Up je navržen pro instalaci uvnitř stěny, což umožňuje vytvořit koupelnu s minimalistickým a moderním vzhledem, aniž by byly viditelné komponenty odvodňovacího systému. Jeho všestrannost a schopnost připojit více sanitárních zařízení z něj činí vynikající volbu pro kompletní koupelny, kde se hledá efektivní a estetické řešení pro odvod odpadních vod.